The Knot
動線美と豊富な収納で、
毎日がすっきり整う
[結の邸]
忙しい毎日に
ゆとりと心地よさをもたらす
![The Terrace Dtype 動線美と豊富な収納で、毎日がすっきり整う [結の邸]](../static/images/plan/dgtype/plan-d-trace.png)
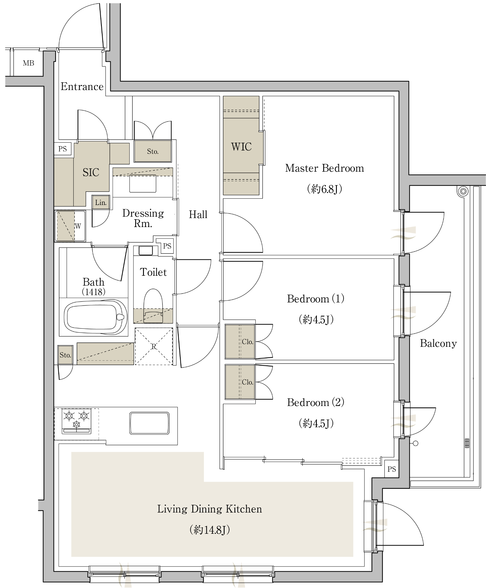
玄関から居住空間までの動線がすっきりと分離された、プライバシー性の高い3LDKプラン。
水回りは一箇所にまとめられ、朝の支度や一日の終わりの動線もなめらか。
隣り合う洋室と主寝室を繋ぐバルコニーが、心地よい風と光を運び家族との時間をより心地よく描き出していく。
all image photo
D type
3LDK+WIC+SIC
専有面積/71.40㎡(約21.59坪)
バルコニー面積/8.91㎡(約2.69坪)
WIC:ウォークインクローゼット
SIC:シューズインクローゼット
※掲載の間取り図は、設計段階の図面を基に描かれたもので、実際とは多少異なる場合があります。
機能性を確保しながら、空間美も高める設備・仕様。
-

参考写真
LDに天井カセット型エアコン
リビング・ダイニングには空間の美観を損なわない、天井埋め込み型のカセットエアコンを標準装備。
-

参考写真
食器洗い乾燥機
家事の時短を実現する食器洗い乾燥機を標準装備。スライド式で食器の出し入れもスムーズです。
※B・Ggタイプを除く。
-

参考写真
ミストサウナ付き浴室暖房乾燥機
入浴後の換気や乾燥により浴室を清潔に。寒い時期には入浴前の暖房、雨天時は洗濯物の乾燥にも使用できます。
-

参考写真
タンクレストイレ
スタイリッシュなデザインのタンクレストイレを採用。トイレ空間をすっきり美しく保ちます。
-

参考写真
トランクルーム※一部住戸除く
建物内にはアウトドアグッズなどの収納に便利なトランクルームを設置しました。
![The Terrace Dtype 動線美と豊富な収納で、毎日がすっきり整うた [結の邸]](../static/images/plan/dgtype/plan-img03.jpg)
![The Terrace Dtype 動線美と豊富な収納で、毎日がすっきり整う [結の邸]](../static/images/plan/dgtype/plan-img04.jpg)
![The Sky Artype 4面採光・4面開口を実現した [空の邸]](../static/images/plan/tab01_w.jpg)
![The Sky Artype 4面採光・4面開口を実現した [空の邸]](../static/images/plan/tab01_w-sp.jpg)
![The Circle Cgtype リビング・ダイニング中心の [集いの邸]](../static/images/plan/tab11_w.jpg)
![The Circle Cgtype リビング・ダイニング中心の [集いの邸]](../static/images/plan/tab11_w-sp.jpg)
![The Terrace Dtype 動線美と豊富な収納で、毎日がすっきり整う[結の邸]](../static/images/plan/tab04_w.jpg)
![The Terrace Dgtype 動線美と豊富な収納で、毎日がすっきり整う[結の邸]](../static/images/plan/tab04_w-sp.jpg)
![The Garden Etype プライベートガーデン付の[翠の邸]](../static/images/plan/tab05_w.jpg)
![The Garden Etype プライベートガーデン付の[翠の邸]](../static/images/plan/tab05_w-sp.jpg)
![The Comfort Egtype リビングテラス一体空間プラン[寛の邸]](../static/images/plan/tab10_w.jpg)
![The Comfort Egtype リビングテラス一体空間プラン[寛の邸]](../static/images/plan/tab10_w-sp.jpg)
![The Creation Ftype 独立性の高いプラン[創造の邸]](../static/images/plan/tab06_w.jpg)
![The Creation Ftype 独立性の高いプラン[創造の邸]](../static/images/plan/tab06_w-sp.jpg)
![The Openness Hr type ダブルルーフバルコニー付の[開放の邸]](../static/images/plan/tab08_w.jpg)
![The Openness Hr type ダブルルーフバルコニー付の[開放の邸]](../static/images/plan/tab08_w-sp.jpg)
![The Light Ggtype ライトウェルを採用した[光の邸]](../static/images/plan/tab07_w.jpg)
![The Light Ggtype ライトウェルを採用した[光の邸]](../static/images/plan/tab07_w-sp.jpg)







![The Terrace Dtype 動線美と豊富な収納で、毎日がすっきり整う [結の邸]](../static/images/plan/dgtype/plan01-d.png)