The Terrace
全居室に面するL字型テラスを設けた
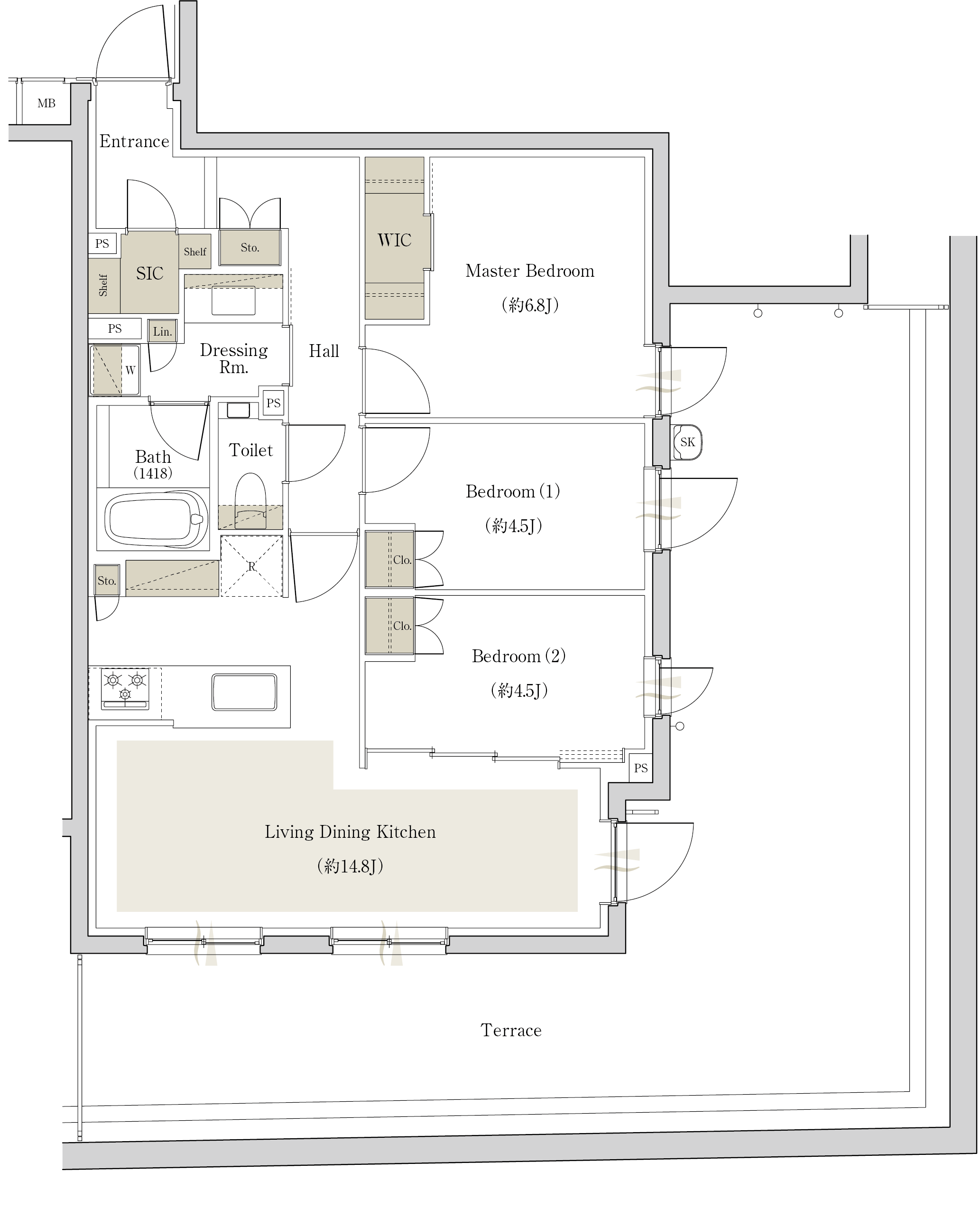
[結の邸]
好きを実現する、
多彩なシーンを描き出す
![The Terrace Dgtype 全居室に面するL字型テラスを設けた [結の邸]](../static/images/plan/dgtype/plan-trace.png)
ライフスタイルを広げる57.61㎡のL字型テラスが魅力のプラン。リビング・ダイニング・キッチンと主寝室から出入りできるほか、ベッドルーム(1)(2)はテラスからの通風採光を確保。
屋外でランチタイムを楽しんだり、各居室の窓先をお気に入りの鉢植えで彩るなど、様々な使い方ができる。思い思いに使えるテラスが、自分らしい暮らし方を実現していく。
all image photo
Dg type
3LDK+WIC+SIC
専有面積/71.40㎡(約21.59坪)
テラス面積/57.61㎡(約17.42坪)
WIC:ウォークインクローゼット
SIC:シューズインクローゼット
※掲載の間取り図は、設計段階の図面を基に描かれたもので、実際とは多少異なる場合があります。
機能性を確保しながら、空間美も高める設備・仕様。
-

参考写真
LDに天井カセット型エアコン
リビング・ダイニングには空間の美観を損なわない、天井埋め込み型のカセットエアコンを標準装備。
-

参考写真
食器洗い乾燥機
家事の時短を実現する食器洗い乾燥機を標準装備。スライド式で食器の出し入れもスムーズです。
※B・Ggタイプを除く。
-

参考写真
ミストサウナ付き浴室暖房乾燥機
入浴後の換気や乾燥により浴室を清潔に。寒い時期には入浴前の暖房、雨天時は洗濯物の乾燥にも使用できます。
-

参考写真
タンクレストイレ
スタイリッシュなデザインのタンクレストイレを採用。トイレ空間をすっきり美しく保ちます。
-

参考写真
トランクルーム※一部住戸除く
建物内にはアウトドアグッズなどの収納に便利なトランクルームを設置しました。
![The Terrace Dgtype 全居室に面するL字型テラスを設けた [結の邸]](../static/images/plan/dgtype/plan-img01.jpg)
![The Terrace Dgtype 全居室に面するL字型テラスを設けた [結の邸]](../static/images/plan/dgtype/plan-img02.jpg)
![The Sky Artype 4面採光・4面開口を実現した [空の邸]](../static/images/plan/tab01_w.jpg)
![The Sky Artype 4面採光・4面開口を実現した [空の邸]](../static/images/plan/tab01_w-sp.jpg)
![The Circle Ctype リビング・ダイニング中心の [集いの邸]](../static/images/plan/tab03_w.jpg)
![The Circle Cgtype リビング・ダイニング中心の [集いの邸]](../static/images/plan/tab03_w-sp.jpg)
![The Terrace Dgtype 全居室に面するL字型テラスを設けた[結の邸]](../static/images/plan/tab09_w.jpg)
![The Terrace Dgtype 全居室に面するL字型テラスを設けた[結の邸]](../static/images/plan/tab09_w-sp.jpg)
![The Terrace Dtype 動線美と豊富な収納で、毎日がすっきり整う[結の邸]](../static/images/plan/tab04_w.jpg)
![The Terrace Dgtype 動線美と豊富な収納で、毎日がすっきり整う[結の邸]](../static/images/plan/tab04_w-sp.jpg)
![The Garden Etype プライベートガーデン付の[翠の邸]](../static/images/plan/tab05_w.jpg)
![The Garden Etype プライベートガーデン付の[翠の邸]](../static/images/plan/tab05_w-sp.jpg)
![The Creation Ftype 独立性の高いプラン[創造の邸]](../static/images/plan/tab06_w.jpg)
![The Creation Ftype 独立性の高いプラン[創造の邸]](../static/images/plan/tab06_w-sp.jpg)
![The Openness Hr type ダブルルーフバルコニー付の[開放の邸]](../static/images/plan/tab08_w.jpg)
![The Openness Hr type ダブルルーフバルコニー付の[開放の邸]](../static/images/plan/tab08_w-sp.jpg)
![The Light Ggtype ライトウェルを採用した[光の邸]](../static/images/plan/tab07_w.jpg)
![The Light Ggtype ライトウェルを採用した[光の邸]](../static/images/plan/tab07_w-sp.jpg)







![The Terrace Dgtype 全居室に面するL字型テラスを設けた [結の邸]](../static/images/plan/dgtype/plan01.png)