The Sky
4面採光・4面開口を実現した
[空の邸]
空の移ろいを愉しむ、
ルーフバルコニー付プラン
![The Sky Artype 4面採光・4面開口を実現した [空の邸]](../static/images/plan/artype/plan-trace.png)
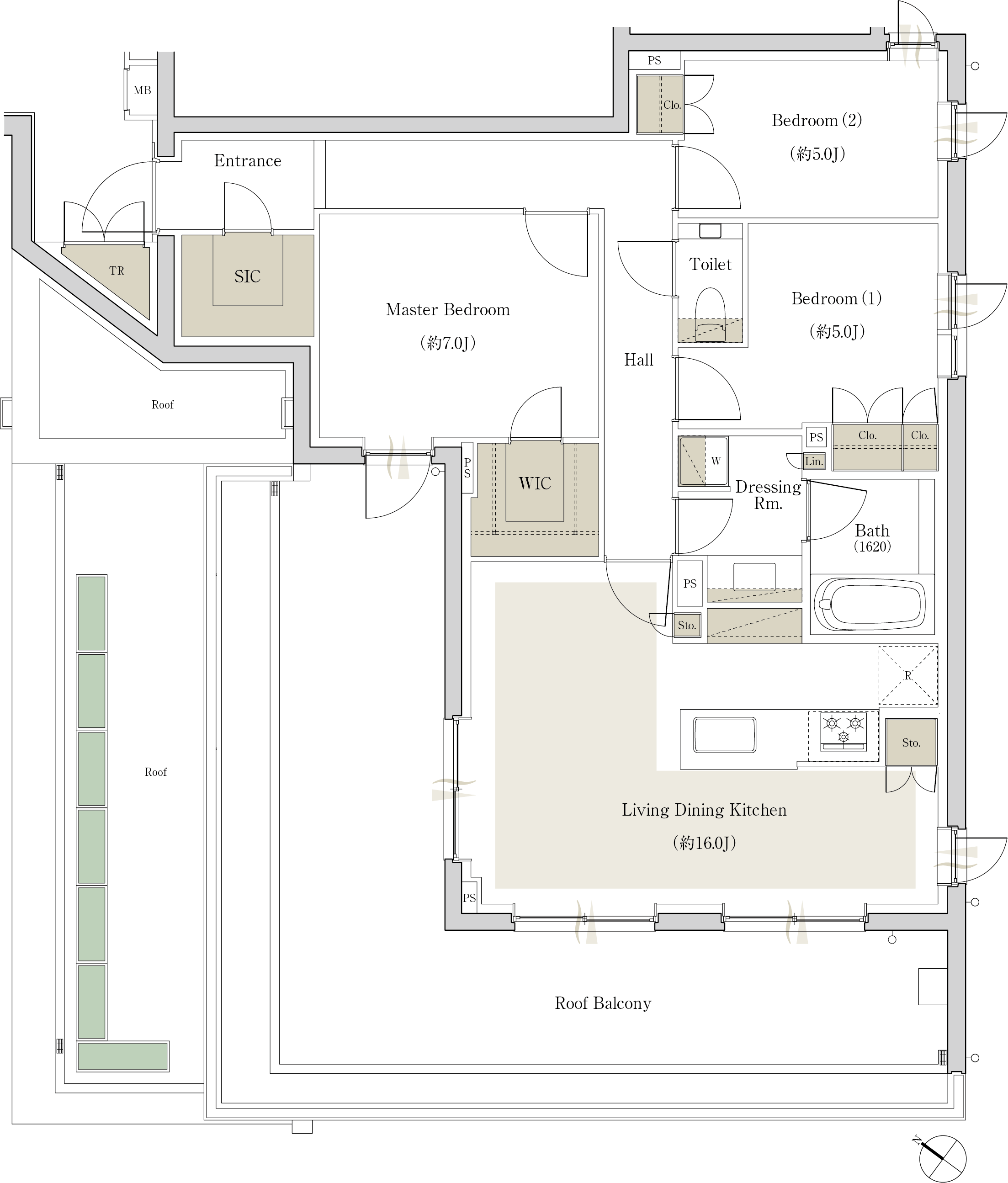
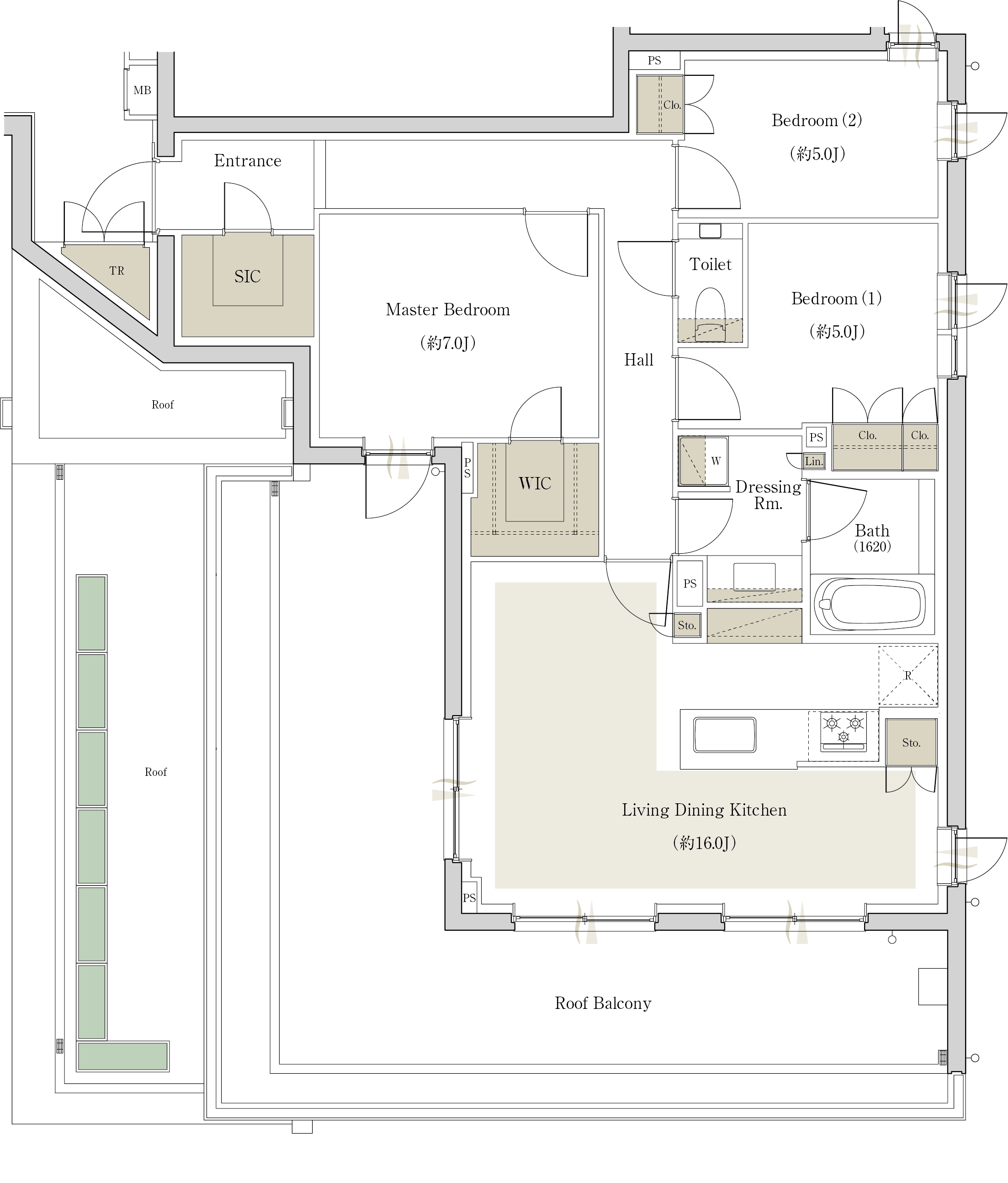
専有面積は棟内で最大の84.07㎡。3面採光の明るく開放的なリビング・ダイニング・キッチンからシームレスにつながる、面積41.73㎡のL字型ルーフバルコニーを配置。
そこではデッキチェアを置いて晴れわたる大空を眺めながらくつろぎ、テーブルセットを出せば本を片手にティータイムを楽しむ事もできる。
四季折々に様々な表情を見せる空を望む、爽快な日々の中へ。
all image photo
Ar type
3LDK+WIC+SIC
専有面積/84.07㎡(約25.43坪)
ルーフバルコニー面積/ 41.73㎡(約12.62坪)
WIC:ウォークインクローゼット
SIC:シューズインクローゼット
※掲載の間取り図は、設計段階の図面を基に描かれたもので、実際とは多少異なる場合があります。
機能性を確保しながら、空間美も高める設備・仕様。
-

参考写真
LDに天井カセット型エアコン
リビング・ダイニングには空間の美観を損なわない、天井埋め込み型のカセットエアコンを標準装備。
-

参考写真
食器洗い乾燥機
家事の時短を実現する食器洗い乾燥機を標準装備。スライド式で食器の出し入れもスムーズです。
※B・Ggタイプを除く。
-

参考写真
ミストサウナ付き浴室暖房乾燥機
入浴後の換気や乾燥により浴室を清潔に。寒い時期には入浴前の暖房、雨天時は洗濯物の乾燥にも使用できます。
-

参考写真
タンクレストイレ
スタイリッシュなデザインのタンクレストイレを採用。トイレ空間をすっきり美しく保ちます。
-

参考写真
トランクルーム※一部住戸除く
建物内にはアウトドアグッズなどの収納に便利なトランクルームを設置しました。
![The Sky Artype 4面採光・4面開口を実現した [空の邸]](../static/images/plan/artype/plan-img01.jpg)
![The Sky Artype 4面採光・4面開口を実現した [空の邸]](../static/images/plan/artype/plan-img02.jpg)
![The Sky Artype 4面採光・4面開口を実現した [空の邸]](../static/images/plan/tab01_w.jpg)
![The Sky Artype 4面採光・4面開口を実現した [空の邸]](../static/images/plan/tab01_w-sp.jpg)
![The Circle Ctype リビング・ダイニング中心の [集いの邸]](../static/images/plan/tab03_w.jpg)
![The Circle Cgtype リビング・ダイニング中心の [集いの邸]](../static/images/plan/tab03_w-sp.jpg)
![The Terrace Dtype 全居室に面するL字型テラスを設けた[結の邸]](../static/images/plan/tab04_w.jpg)
![The Terrace Dgtype 全居室に面するL字型テラスを設けた[結の邸]](../static/images/plan/tab04_w-sp.jpg)
![The Garden Etype プライベートガーデン付の[翠の邸]](../static/images/plan/tab05_w.jpg)
![The Garden Etype プライベートガーデン付の[翠の邸]](../static/images/plan/tab05_w-sp.jpg)
![The Creation Ftype 独立性の高いプラン[創造の邸]](../static/images/plan/tab06_w.jpg)
![The Creation Ftype 独立性の高いプラン[創造の邸]](../static/images/plan/tab06_w-sp.jpg)
![The Openness Hr type ダブルルーフバルコニー付の[開放の邸]](../static/images/plan/tab08_w.jpg)
![The Openness Hr type ダブルルーフバルコニー付の[開放の邸]](../static/images/plan/tab08_w-sp.jpg)
![The Wind Btype 主寝室に吹抜を採用した [風の邸]](../static/images/plan/tab02_w.jpg)
![The Wind Btype 主寝室に吹抜を採用した [風の邸]](../static/images/plan/tab02_w-sp.jpg)
![The Light Ggtype ライトウェルを採用した[光の邸]](../static/images/plan/tab07_w.jpg)
![The Light Ggtype ライトウェルを採用した[光の邸]](../static/images/plan/tab07_w-sp.jpg)







![The Sky Artype 4面採光・4面開口を実現した [空の邸]](../static/images/plan/artype/plan01.png)